Gama Mediterránea

Serie Vela

Ventanas de Aluminio en Valencia Ventanas Correderas en Valencia RPT

Ventana corredera con rotura de puente térmico, que posee un diseño minimalista y perfiles que maximizan la entrada de luz natural.

Otras características

  • Concepto minimalista que permite máxima luminosidad.
  • Excelentes prestaciones térmicas y acústicas.
  • Marcos ocultos en obra y el inferior enrasado para accesibilidad plena.
  • Sistema de drenaje oculto registrable integrado

Características generales de la Serie Vela

Prestaciones

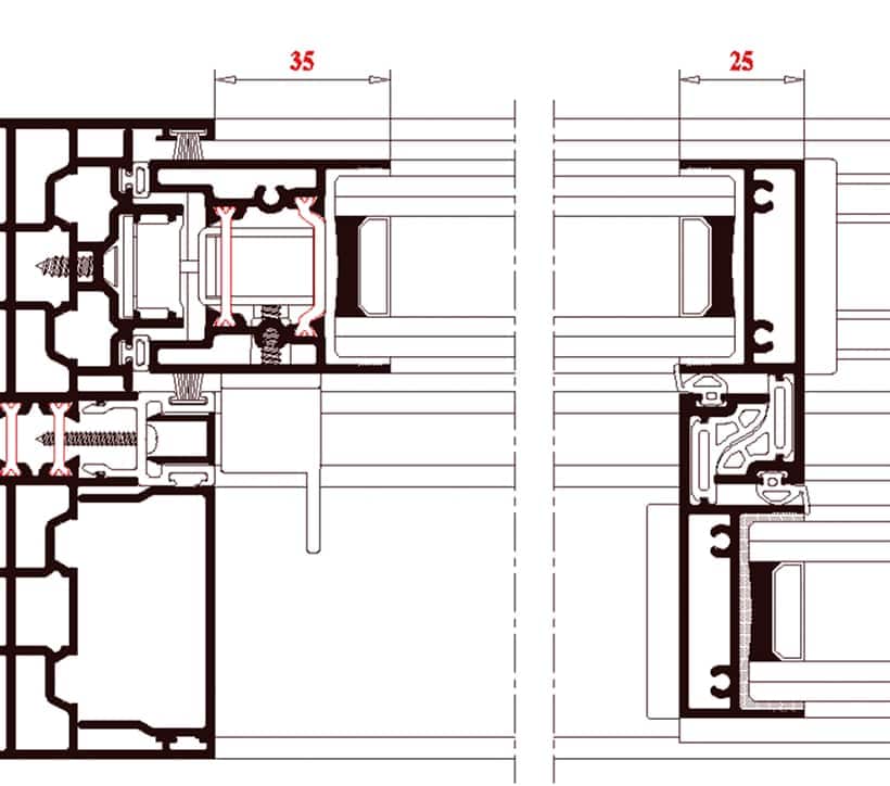
Marco:

128 mm / 197 mm. Tricarril

Hoja:

35 mm lateral y de 25 mm central

Acristalamientos:

hasta 36 mm

Peso máximo por hoja:

500 kg

Resistencia viento:

C5

Estanqueidad al agua

9A

Permeabilidad aire:

CLASE 4

Transmitancia térmica:

Desde 0,9 W/m2K

Aislamiento acústico:

Hasta 42 dB

Zonas de cumplimiento CTE:

A, B, C, D, E, a

Acabados

  • Posibilidad de bicolor.
  • Lacados colores (Ral, Moteados y Rugosos).
  • Efecto madera.
  • Anodizado.

Aperturas

  • Corredera de 2, 3, 4 y 6 hojas.
  • Galandage 1, 2 y 4 hojas.
  • Corredera 1 hoja + fijo.
  • Corredera tricarril.
  • Apertura en esquina abierta.
  • Posibilidad de motorizar.

Secciones

Colores que otorgan protagonismo y personalidad a cada una de tus ventanas en cada estancia de tu hogar.

Amplia variedad de colores con sello Qualicoat: lacados, tonos madera, texturados, colores lisos, metálicos. Nuestros perfiles se caracterizan por una alta resistencia a las condiciones meteorológicas y por la durabilidad del acabado. Los colores son orientativos, para más información, consultar carta RAL.

BÁSICOS
CORP. TXT CABAÑERO
BÁSICOS BRILLO LACADO
LACADO BLANCO MATE
BÁSICOS
LACADO BLANCO BRILLO
BÁSICOS RAL 9010
BLANCO PURO
BÁSICOS RAL 7035
GRIS LUMINOSO
BÁSICOS RAL 7012
GRIS BASALTO
BÁSICOS RAL 7021
GRIS NEGRUZCO
BÁSICOS RAL 7016
GRIS ANTRACITA
MATE RAL 7016 BÁSICOS
GRIS ANTRACITA
BÁSICOS RAL 7011
GRIS HIERRO
BÁSICOS RAL 7022
GRIS SOMBRA
BÁSICOS MATE RAL 7022
GRIS SOMBRA
BÁSICOS RAL 6005
VERDE MUSGO
BÁSICOS RAL 6009
VERDE ABETO
BÁSICOS RAL 8007
PARDO CORZO
BÁSICOS RAL 8014
MARRÓN SEPIA
BÁSICOS RAL 9005
NEGRO INTENSO
BÁSICOS RAL 1015
MARFIL CLARO
BÁSICOS RAL 3005
ROJO VINO
BÁSICOS RAL 5010
AZUL GENCIANA
RAL 7016
GRIS ANTRACITA
RAL OXIDON TXT
RAL 7022
GRIS SOMBRA
NOGAL OSCURO
ROBLE GOLDEN
BRONCE GRATADO REPULIDO
ORO GRATADO REPULIDO
INOX GRATADO MATE
PLATA GRATADA REPULIDA
PLATA MATE

Otros productos de esta gama

Nuestras tiendas

Encuéntranos

Ven a vernos y te asesoramos en persona

Reserva cita en tu tienda Cabañero más cercana.

Hablemos

Contacta con nosotros

¿Dudas? Solicita que te llamemos o una videollamada con nuestro equipo asesor.