Levante

Serie Dynamic Thermic Plus

Ventanas de Aluminio Ventanas Correderas Ventanas Elevables RPT

Sus hojas de sección reducida maximizan la superficie acristalada, proporcionando mayor luminosidad. Con excelentes prestaciones térmicas y acústicas, máxima eficiencia energética y confort.

Otras características

  • Sistema de ventana y puerta corredera elevable con Rotura de Puente Térmico.
  • Excelentes prestaciones térmicas y acústicas.
  • Hojas de sección reducida que maximiza la superficie acristalada.

Características generales de la Serie Dynamic Thermic

Prestaciones

Marco:

75 mm. 2 carriles y 132 mm. Tricarril

Marco:

189 mm. (4 carriles)

Hoja:

44 mm

Espesores medios:

1,6 - 2,0 mm

Acristalamientos:

hasta 40 mm

Peso máximo:

200 kg en corredera y 250 kg en elevable

Zonas de cumplimiento CTE:

A, B, C, D, E, a

Longitud poliamida:

47 mm en marcos y 36 mm en hojas

Resistencia viento:

C5

Estanqueidad al agua

7A

Permeabilidad aire:

CLASE 4

Transmitancia térmica:

Desde 1,0 W/m2k

Aislamiento acústico:

Hasta 41 dB

Acabados

  • Posibilidad de bicolor.
  • Lacados colores (RAL, Moteados, Rugosos).
  • Efecto madera.
  • Anodizado.

Aperturas

  • Corredera de 2, 3, 4, 6 y 8 hojas.
  • Galandage 1, 2, 3 y 4 hojas.
  • Corredera 1 hoja + fijo.
  • Marco monocarril 1, 2, 3 y 4 hojas.
  • Corredera tricarril.
  • Corredera 4 carriles
  • Apertura en esquina abierta.
  • Posibilidad de motorizar.

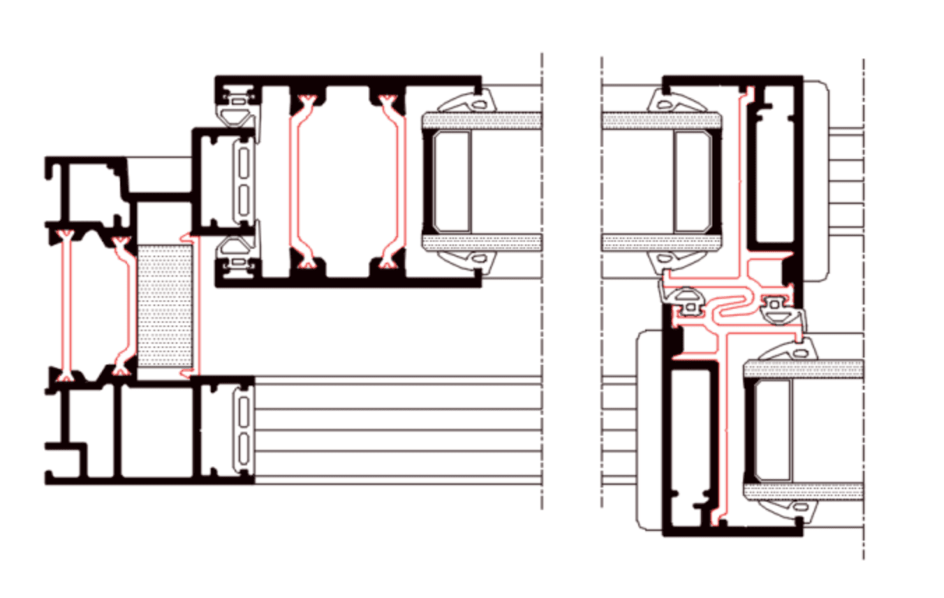
Secciones

Colores que otorgan protagonismo y personalidad a cada una de tus ventanas en cada estancia de tu hogar.

Amplia variedad de colores con sello Qualicoat: lacados, tonos madera, texturados, colores lisos, metálicos. Nuestros perfiles se caracterizan por una alta resistencia a las condiciones meteorológicas y por la durabilidad del acabado. Los colores son orientativos, para más información, consultar carta RAL.

BÁSICOS
CORP. TXT CABAÑERO
BÁSICOS BRILLO LACADO
LACADO BLANCO MATE
BÁSICOS
LACADO BLANCO BRILLO
BÁSICOS RAL 9010
BLANCO PURO
BÁSICOS RAL 7035
GRIS LUMINOSO
BÁSICOS RAL 7012
GRIS BASALTO
BÁSICOS RAL 7021
GRIS NEGRUZCO
BÁSICOS RAL 7016
GRIS ANTRACITA
MATE RAL 7016 BÁSICOS
GRIS ANTRACITA
BÁSICOS RAL 7011
GRIS HIERRO
BÁSICOS RAL 7022
GRIS SOMBRA
BÁSICOS MATE RAL 7022
GRIS SOMBRA
BÁSICOS RAL 6005
VERDE MUSGO
BÁSICOS RAL 6009
VERDE ABETO
BÁSICOS RAL 8007
PARDO CORZO
BÁSICOS RAL 8014
MARRÓN SEPIA
BÁSICOS RAL 9005
NEGRO INTENSO
BÁSICOS RAL 1015
MARFIL CLARO
BÁSICOS RAL 3005
ROJO VINO
BÁSICOS RAL 5010
AZUL GENCIANA
RAL 7016
GRIS ANTRACITA
RAL OXIDON TXT
RAL 7022
GRIS SOMBRA
NOGAL OSCURO
ROBLE GOLDEN
BRONCE GRATADO REPULIDO
ORO GRATADO REPULIDO
INOX GRATADO MATE
PLATA GRATADA REPULIDA
PLATA MATE

Otros productos de esta gama

Nuestras tiendas

Encuéntranos

Ven a vernos y te asesoramos en persona

Reserva cita en tu tienda Cabañero más cercana.

Hablemos

Contacta con nosotros

¿Dudas? Solicita que te llamemos o una videollamada con nuestro equipo asesor.